GVF arquitectura
................
Instalacion de ascensor en Calle Ben Khanis 1, Cocentaina (Alicante) |
|
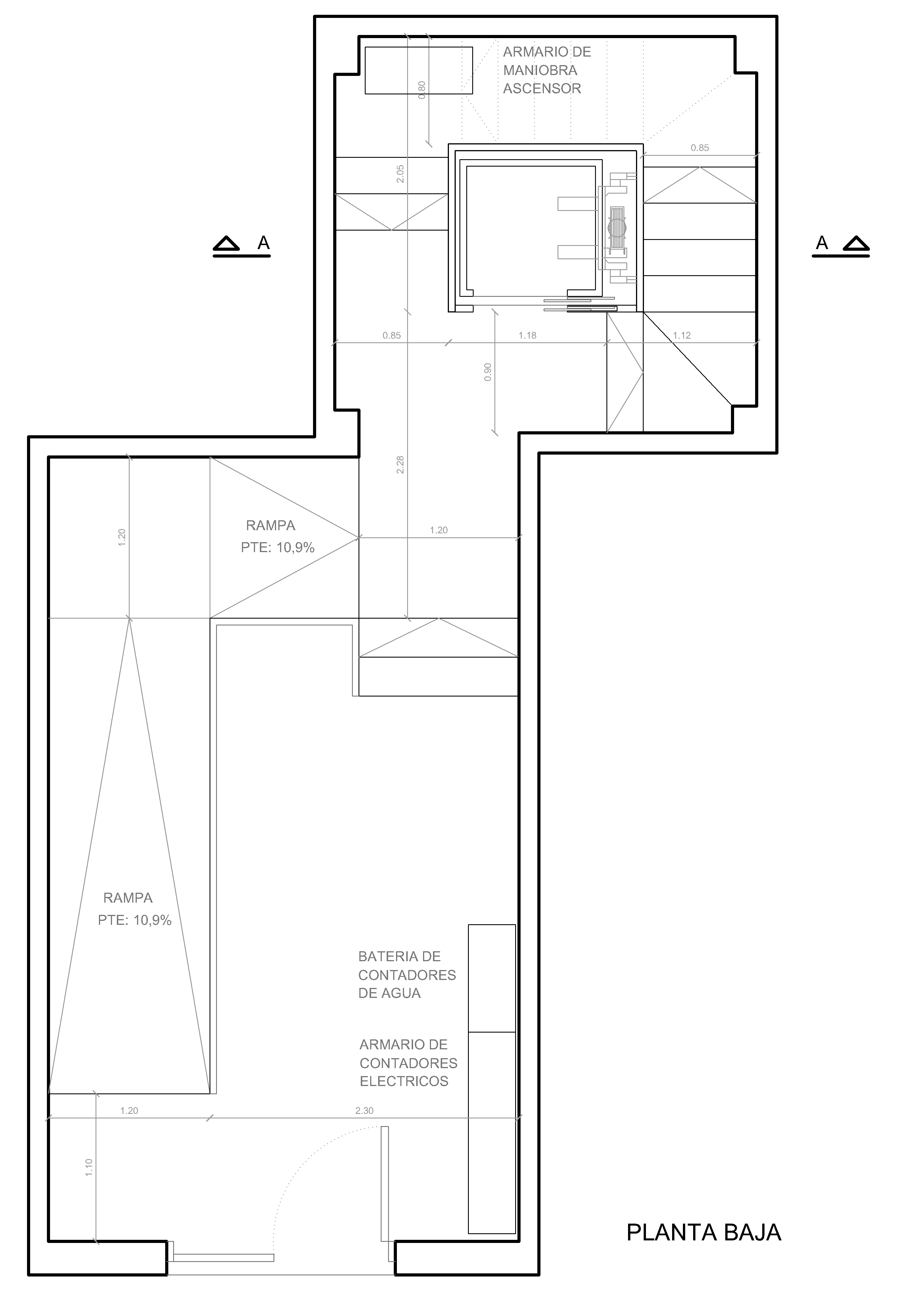
Fecha de redacción del proyecto: Junio de 2.008 Tipo de intervención: Instalación de ascensor en el ojo de la escalera existente con recorte de ésta Número de plantas del edificio: 5 (Planta baja + 4 Plantas de piso) Presupuesto de ejecución material de las obras sin incluir el ascensor: 41.578,00 euros |
Edificio reformado |
Estado anterior a la reforma |